225 Parklands Ave

225 Parklands Ave

225 Parklands Ave, Bell Block

New Plymouth, Taranaki

3
2
2

Land Area: 400m2

Floor Area: 171.3m2

$955,000

Construction Starting Soon!

Full landscaping package.

Positioned for sun and private outdoor living, this beautiful home has a designer kitchen, fully tiled bathroom walls and flooring with tiled showers. Stunning vanities, tapware, mirrors make the bathrooms sophisticated and lush.

This home will be completed so you just turn the key and move in! We have beautiful roller blinds, drapes over sliders, heating, and landscaping are included - so move in and enjoy!

 

2 other car parks.

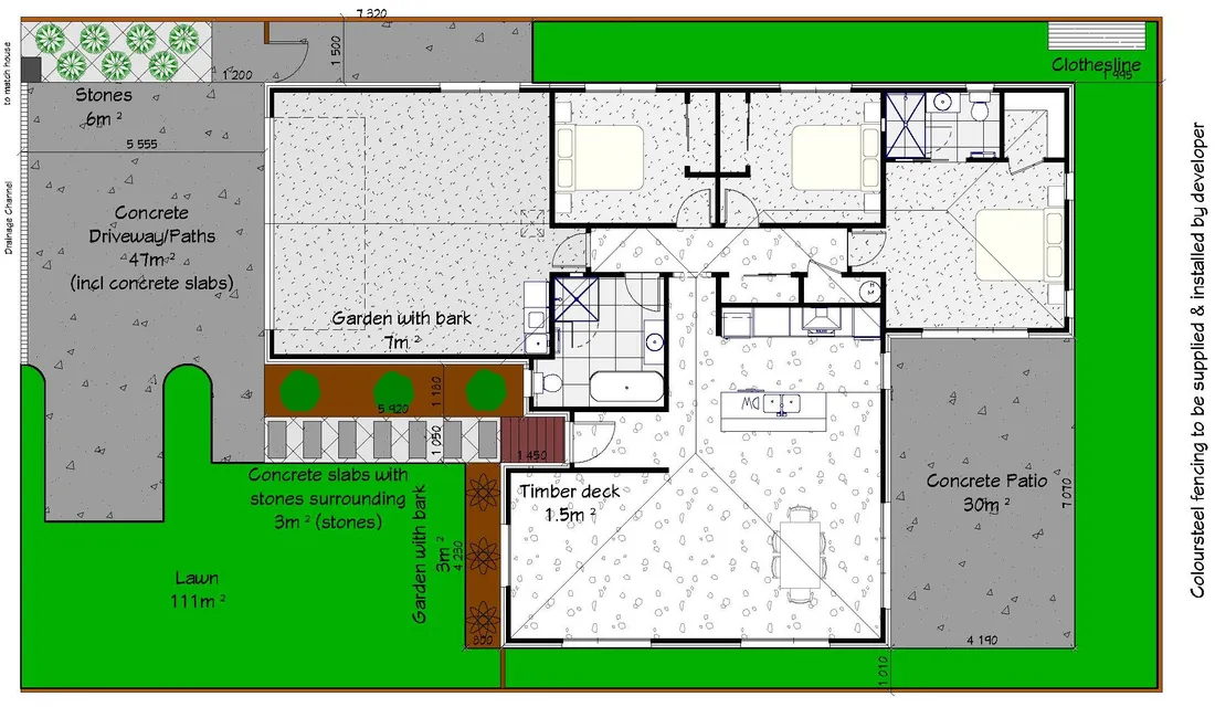
Floor plan

House Features

Roofing: Multirib

Tiled Showers: Fully Tiled Showers and Bathroom

Designer Kitchen: Beautifully manufactured designer kitchen

Fully Landscaped: Fencing, Grass, Patios, and Plants!

Window Dressings: Roller Blinds and Drapes

Heating: Mitsubishi High Wall Heatpump

Garage: Fully insulated Garage, walls, ceiling and garage door, plus garage carpet!

Walk-in Wardrobe: Designer Shelving System

Gallery

You’ll love the experience of building with New Zealand’s premier new home builder so join thousands of satisfied Kiwi families and build with Golden Homes.

Speak to a Golden Homes Consultant.

Contact Us

Order A Plan Book

Our plan book contains all of the Golden Homes plans, testimonials, building guides and more.

Investment

Build your portfolio with Golden Homes.

Get our plan
book today.

Our plan book contains all of the Golden Homes plans, testimonials, building guides and more. Get your copy sent to your inbox or letterbox today.