Lot 39 Kennedys Green

Lot 39 Kennedys Green

Halswell,

Christchurch, Canterbury

3
1.5
1

Land Area: 300 + ROWm2

Floor Area: 121.1m2

$749,500

Set in the ever-popular Halswell, this home enjoys a location that perfectly balances convenience and lifestyle. Halswell continues to grow with new retail shops, supermarkets, and modern amenities, including the state-of-the-art Ngā Puna Wai Sports Centre, a contemporary library, and the local New World. Families are well served by excellent schools, while the community also enjoys a summer pool, nearby cafes and restaurants, and the natural beauty of Halswell Quarry. With quick connections to the city centre, it’s easy to see why Halswell remains one of Christchurch’s most sought-after suburbs.

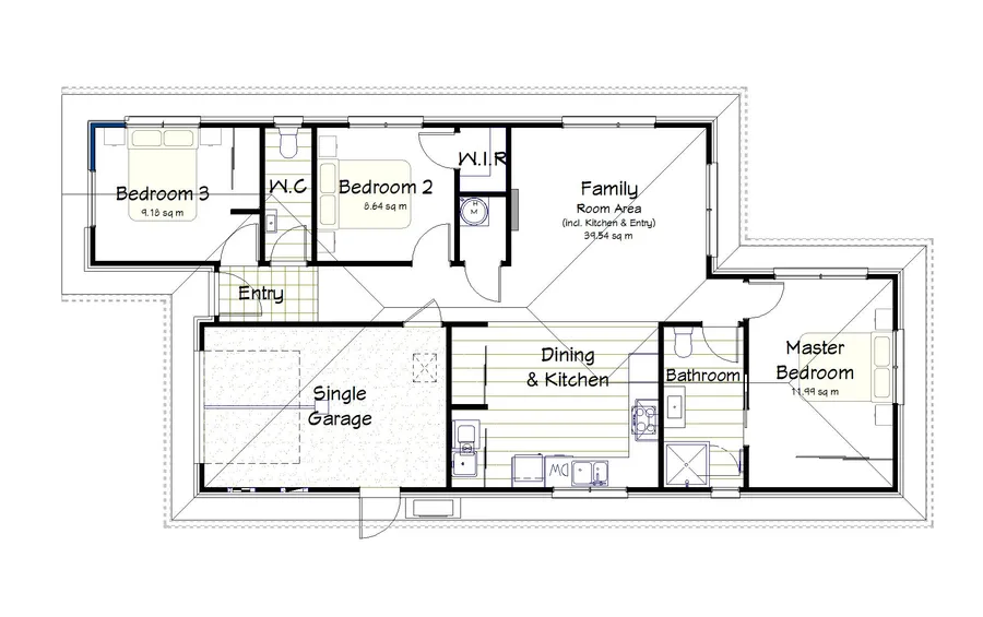
This cleverly designed home makes the most of every space, with a central living zone at its heart. The dining and kitchen areas feature durable hard flooring, perfect for everyday living, while the kitchen itself includes not one but two built-in cupboards – one for general storage or linen, and another that neatly hosts laundry provisions. It’s a smart, space-saving layout that balances style with practicality.

Flowing seamlessly from the kitchen and dining is the family living area, complete with a glass sliding door that opens to the outdoors and a centrally appointed heat pump for year-round comfort. This light-filled hub is designed for both relaxed family time and effortless entertaining.

The master bedroom is nearly 12m² in size, with direct access to the family bathroom, a built-in wardrobe, and a glass sliding door to the outdoors. Two additional double bedrooms also include built-in wardrobes, making them perfect for family, guests, or a home office. A separate toilet adds extra convenience.

Thoughtful details continue throughout, with a hallway storage cupboard, internal access to the single garage, and garage carpet included for comfort and practicality. This home blends clever design, functional spaces, and modern finishes to deliver easy, enjoyable living.

Floor plan

House Features

  • Fixed price contract

  • Title due March; lock in today's build cost and enjoy tomorrow's interest rates

  • Open plan kitchen & dining space with hard flooring that flows to the main family space

  • Glass sliding door in the family area

  • Fully-inclusive designer kitchen with Fisher & Paykel appliances

  • Tristone benchtops in kitchen

  • 3 double bedrooms, all with built in wardrobes

  • Master bedroom includes glass sliding door and bathroom access

  • Family bathroom

  • Additional seperate toilet

  • Toilets with soft-closing seat lids

  • Brick & Linea feature exterior cladding

  • Long run roof iron finish

  • Internal access garage, plus off-street parking

  • Insulated garage walls and ceiling, insulated garage door, plus garage carpet on floor

  • 6.8k/W Mitsubishi heatpump (with Wi-Fi Control)

  • Fully double-glazed thermally broken windows (and glass doors) with Low E and Argon gas

  • Electronic entry keypad on front door

  • Fibre connection patch panel

  • LED lighting

  • HomeRAB thermal break pre-cladding

  • Strong foundation – Ribraft for peace of mind

  • ZOG Steel Framing tested to Magnitude 9

  • Fire retardant roof underlay

  • Hard landscaping included – driveway, paths & patios

  • Clothesline & letterbox included

  • NZ-made Steel framing for structural integrity & health benefits

  • Resene Architectural SpaceCote paints

  • Comprehensive 10 year warranty


Just add your soft landscaping and drapes / blinds to complete this package.
Call us today 0800 22 22 36 to chat about this House & Land build or enquire about our numerous House & Land options available to suit your household, your budget, and your wish list.

Gallery

You’ll love the experience of building with New Zealand’s premier new home builder so join thousands of satisfied Kiwi families and build with Golden Homes.

Speak to a Golden Homes Consultant.

Contact Us

Order A Plan Book

Our plan book contains all of the Golden Homes plans, testimonials, building guides and more.

Investment

Build your portfolio with Golden Homes.

Get our plan
book today.

Our plan book contains all of the Golden Homes plans, testimonials, building guides and more. Get your copy sent to your inbox or letterbox today.