Lot 171 Country View

Lot 171 Country View

Halswell,

Christchurch, Canterbury

4
2
2

Land Area: 532 + ROWm2

Floor Area: 165.4m2

$989,500

Set in the ever-popular Halswell, and in zone for Knights Stream School, this home enjoys a location that perfectly balances convenience and lifestyle. Halswell continues to grow with new retail shops, supermarkets, and modern amenities, including the state-of-the-art Ngā Puna Wai Sports Centre, a contemporary library, and the local New World. Families are well served by excellent schools, while the community also enjoys a summer pool, nearby cafes and restaurants, and the natural beauty of Halswell Quarry. With quick connections to the city centre, it’s easy to see why Halswell remains one of Christchurch’s most sought-after suburbs.

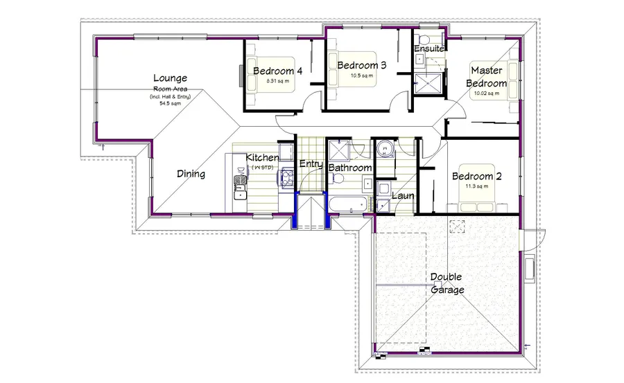
This home is designed for comfortable, modern living, with an open-plan kitchen and dining area that flows seamlessly into the lounge, creating a spacious and connected living environment. A three-panel glass sliding door in the lounge enhances natural light and indoor–outdoor flow, while a heat pump ensures year-round comfort.

The home features four double bedrooms, all with built-in wardrobes, offering flexibility for families or guests. The master bedroom includes its own ensuite, while the family bathroom is well appointed with both a shower and a bath to suit busy households.

Practical features are thoughtfully incorporated throughout, including a tiled entry floor, a dedicated laundry room with hard flooring and built-in storage, and internal access to the double garage. Finished with hard-wearing carpet, the garage adds everyday convenience to a well-balanced and highly liveable home.

Floor plan

House Features

  • Fixed price contract

  • Title due September; secure today's build cost and enjoy tomorrow's interest rates!

  • Open plan kitchen and dining

  • Joining lounge space 

  • Fully-inclusive designer kitchen with Fisher & Paykel appliances

  • Tristone benchtops in kitchen

  • 4 double bedrooms

  • Master bedroom includes walk-in wardrobe and ensuite

  • Family bathroom includes shower/bath

  • Toilets with soft-closing seat lids

  • Resene INTEGRA Lightweight Concrete Facade & Linea feature exterior cladding

  • Long run roof iron finish

  • Internal access double garage, plus off-street parking

  • Insulated garage walls and ceiling, insulated garage door, plus garage carpet on floor

  • 6.8k/W Mitsubishi heatpump (with Wi-Fi Control)

  • Fully double-glazed thermally broken windows (and glass doors) with Low E and Argon gas

  • Electronic entry keypad on front door

  • Fibre connection patch panel

  • LED lighting

  • HomeRAB thermal break pre-cladding

  • Strong foundation – Ribraft for peace of mind

  • ZOG Steel Framing tested to Magnitude 9

  • Fire retardant roof underlay

  • Hard landscaping included – driveway, paths & patios

  • Clothesline & letterbox included

  • NZ-made Steel framing for structural integrity & health benefits

  • Resene Architectural SpaceCote paints

  • Comprehensive 10 year warranty


Just add your soft landscaping and drapes / blinds to complete this package.
Call us today 0800 22 22 36 to chat about this House & Land build or enquire about our numerous House & Land options available to suit your household, your budget, and your wish list.

Gallery

You’ll love the experience of building with New Zealand’s premier new home builder so join thousands of satisfied Kiwi families and build with Golden Homes.

Speak to a Golden Homes Consultant.

Contact Us

Order A Plan Book

Our plan book contains all of the Golden Homes plans, testimonials, building guides and more.

Investment

Build your portfolio with Golden Homes.

Get our plan
book today.

Our plan book contains all of the Golden Homes plans, testimonials, building guides and more. Get your copy sent to your inbox or letterbox today.