4 Leeston Dunsandel Road

4 Leeston Dunsandel Road

Leeston,

Selwyn District, Canterbury

4
2
2

Land Area: 627m2

Floor Area: 174.9m2

$729,500

Leeston is a growing township that blends rural charm with everyday convenience. With shops, schools, cafés, and community facilities all nearby, it’s a place where lifestyles feel relaxed. Just a short drive from Rolleston and Lincoln, you’ll enjoy the best of country living with city connections close at hand.

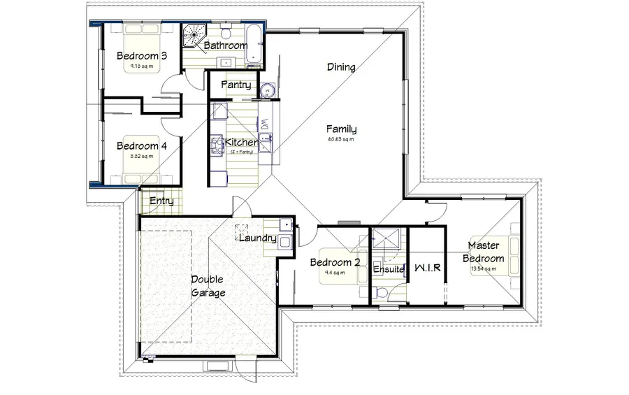
This home has a stunning design that offers elevated street presence and modern appeal. The kitchen, dining, and family areas are all open plan, featuring a walk-in pantry, built-in storage cupboard with sliding doors, and a large three-panel glass slider that opens to the outdoors. Year-round comfort is provided by a centrally appointed heat pump, while the master bedroom includes its own glass slider, a walk-through wardrobe, and a private ensuite bathroom.

Three additional double bedrooms each come with built-in wardrobes, and the family bathroom provides both a bath and shower. Practical touches include internal access to the garage, which is finished with insulated walls, an insulated garage door, hard-wearing garage carpet, and a hard-flooring laundry space.

Floor plan

House Features

  • Fixed price contract

  • Titled section, Lot 128 Karumata Oaks; Street Addressed 4 Leeston Dunsandel Road

  • Open plan kitchen, dining and family space

  • Fully-inclusive designer kitchen with Fisher & Paykel appliances

  • Tristone benchtops in kitchen and walk-in pantry

  • 4 double bedrooms

  • Master bedroom includes glass sliding door, walk-through wardrobe and ensuite

  • Family bathroom includes shower/bath

  • Toilets with soft-closing seat lids

  • Brick & Linea feature exterior cladding

  • Long run roof iron finish

  • Internal access double garage, plus off-street parking

  • Insulated garage walls and ceiling, insulated garage door, plus garage carpet on floor

  • 6.8k/W Mitsubishi heatpump (with Wi-Fi Control)

  • Fully double-glazed thermally broken windows (and glass doors) with Low E and Argon gas

  • Electronic entry keypad on front door

  • Fibre connection patch panel

  • LED lighting

  • HomeRAB thermal break pre-cladding

  • Strong foundation – Ribraft for peace of mind

  • ZOG Steel Framing tested to Magnitude 9

  • Fire retardant roof underlay

  • Hard landscaping included – driveway, paths & patios

  • Clothesline & letterbox included

  • NZ-made Steel framing for structural integrity & health benefits

  • Resene Architectural SpaceCote paints

  • Comprehensive 10 year warranty


Just add your soft landscaping and drapes / blinds to complete this package.
Call us today 0800 22 22 36 to chat about this House & Land build or enquire about our numerous House & Land options available to suit your household, your budget, and your wish list.

Gallery

You’ll love the experience of building with New Zealand’s premier new home builder so join thousands of satisfied Kiwi families and build with Golden Homes.

Speak to a Golden Homes Consultant.

Contact Us

Order A Plan Book

Our plan book contains all of the Golden Homes plans, testimonials, building guides and more.

Investment

Build your portfolio with Golden Homes.

Get our plan
book today.

Our plan book contains all of the Golden Homes plans, testimonials, building guides and more. Get your copy sent to your inbox or letterbox today.