2 Blakely Street

2 Blakely Street

Amberley,

Hurunui District, Canterbury

4
2
2

Land Area: 664m2

Floor Area: 162.3m2

$679,500

Nestled in the heart of North Canterbury, Amberley offers the perfect balance of small-town charm and modern convenience. Just a short drive to Christchurch, it’s surrounded by boutique shops, cafés, vineyards, and stunning beaches. With excellent schools and a welcoming community, it’s a location that truly feels like home.

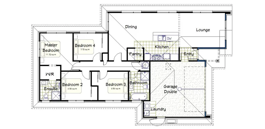
This stunning house and land package in Amberley boasts a fantastic floorplan that maximises space and creates flexible living options for families or those who love to entertain. At the heart of the home is a stylish kitchen with tiled flooring and a generous walk-in pantry, seamlessly connected to the lounge area. A centrally located heat pump and glass sliding door from the dining space ensure comfort and easy indoor-outdoor flow.

The tiled entry leads into the lounge, where a heightened ceiling and large windows create a light-filled area. The master bedroom features a walk-through wardrobe, a tiled floor ensuite, and its own glass sliding door for private outdoor access. Three additional bedrooms all include built-in wardrobes, while the tiled family bathroom offers both a shower and a bath for ultimate convenience.

Practicality is well covered with two built-in storage cupboards in the hallway, internal access to the double garage, and a hard-floored laundry nook neatly tucked inside. The garage is equipped with an insulated garage door, insulated walls and ceiling, as well as hard-wearing garage carpet.

Floor plan

House Features

  • Fixed price contract

  • Titled section, Lot 1 Blakely, addressed 2 Blakely Street, so we can get building quickly!

  • Open plan kitchen and dining space

  • Seperate joining lounge space with a heightened ceiling feature

  • Fully-inclusive designer kitchen with Fisher & Paykel appliances

  • Tristone benchtops in kitchen and walk-in pantry

  • 4 double bedrooms

  • Master bedroom includes glass sliding door, walk-through wardrobe and ensuite

  • Family bathroom includes shower/bath

  • Toilets with soft-closing seat lids

  • Brick & Linea feature exterior cladding

  • Long run roof iron finish

  • Internal access double garage, plus off-street parking

  • Insulated garage walls and ceiling, insulated garage door, plus garage carpet on floor

  • 6.8k/W Mitsubishi heatpump (with Wi-Fi Control)

  • Fully double-glazed thermally broken windows (and glass doors) with Low E and Argon gas

  • Electronic entry keypad on front door

  • Fibre connection patch panel

  • LED lighting

  • HomeRAB thermal break pre-cladding

  • Strong foundation – Ribraft for peace of mind

  • ZOG Steel Framing tested to Magnitude 9

  • Fire retardant roof underlay

  • Hard landscaping included – driveway, paths & patios

  • Clothesline & letterbox included

  • NZ-made Steel framing for structural integrity & health benefits

  • Resene Architectural SpaceCote paints

  • Comprehensive 10 year warranty


Just add your soft landscaping and drapes / blinds to complete this package.
Call us today 0800 22 22 36 to chat about this House & Land build or enquire about our numerous House & Land options available to suit your household, your budget, and your wish list.

Gallery

You’ll love the experience of building with New Zealand’s premier new home builder so join thousands of satisfied Kiwi families and build with Golden Homes.

Speak to a Golden Homes Consultant.

Contact Us

Order A Plan Book

Our plan book contains all of the Golden Homes plans, testimonials, building guides and more.

Investment

Build your portfolio with Golden Homes.

Get our plan
book today.

Our plan book contains all of the Golden Homes plans, testimonials, building guides and more. Get your copy sent to your inbox or letterbox today.